
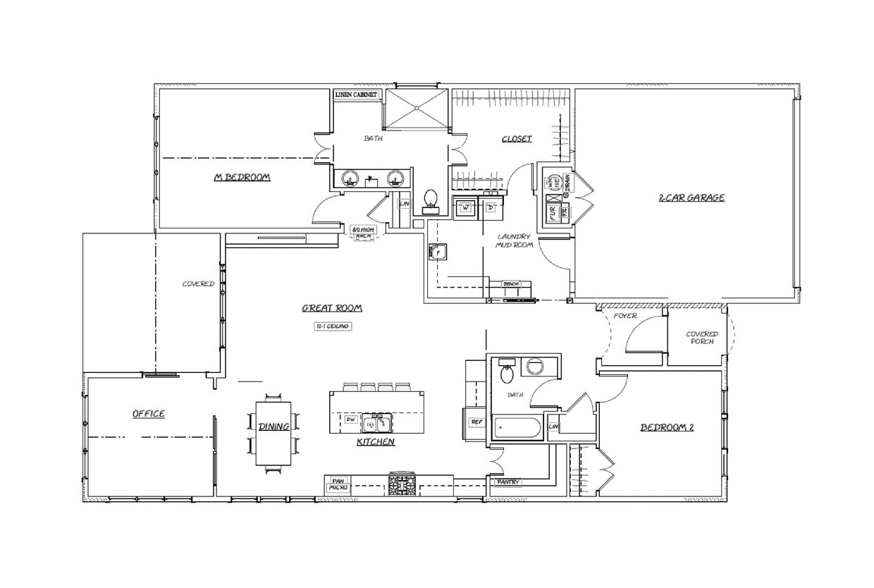
The Elaine floor plan blends Tudor charm with the ease of modern zero entry single floor living. The Elaine features an open-concept living space with 2 bedrooms, an oversized two car garage, and a sunroom and generous covered porch - perfect for relaxing or entertaining.
Mickey Stremel is a trusted Realtor with Keller Williams Integrity and a licensed residential general contractor in Kansas. She is your go-to resource. Reach out today!


We use cookies to analyze website traffic and optimize your website experience. By accepting our use of cookies, your data will be aggregated with all other user data.